レンタルギャラリー
中目黒駅徒歩6分、代官山駅徒歩7分のイベントスペース。
谷尻誠+吉田愛(サポーズデザインオフィス)設計のモダンで洗練された空間は、ポップアップや展示会、撮影など多用途に対応可能。ガラス張りで通りからの視認性が高く、自然光が差し込む明るい空間が、作品や商品、ブランドの魅力を引き立てます。
中目黒で印象的な空間演出をお楽しみください。
| 利用用途 | ポップアップストア / 販促イベント / 展示会・個展 / 写真・動画撮影 |
|---|---|
| 利用料金 (税込) |
平日 77,000 円/日〜 土日祝 121,000 円/日〜 ※最低1日間から利用可能 |
| 所在地 | 〒153-0051 東京都目黒区上目黒1-10-15 |
| 周辺の駅 | 中目黒駅 |
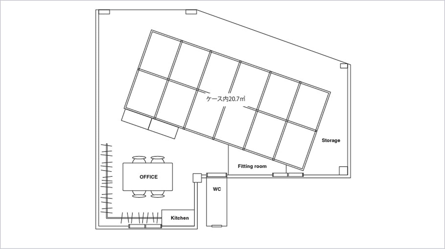
| 広さ | 6.93坪 (56.0m²) |
| 利用可能時間 | 10:00〜19:00 |
| 定休日 | 不定休 |
| 内覧 | 可能(内覧希望に関しては事前にご連絡ください) |
| 特徴 | 路面(1F) / 自然光あり / ペット(BOX内不可)一部OK |
| 設備・什器 | 空調 / 電源 / トイレ / バックヤード / 試着室 |
| キャンセル について |
利用開始日の 61 ~ 80 日前まで: ご利用料金の 0 % 利用開始日の 31 ~ 60 日前まで: ご利用料金の 20 % 利用開始日の 15 ~ 30 日前まで: ご利用料金の 50 % 利用開始日の 0 ~ 14 日前まで: ご利用料金の 100 % |
PRICE
時間貸し(税込)
平日:11,000円/時間
土日祝:22,000円/時間
※4時間以上から利用可能
時間外利用
時間外にご利用の場合は20%増になります。 ※対象時間は、申請時間(前倒しの場合は入室時間)から完全搬出までの時間になります。
荷物受け取り、発送(税込)
荷物の受け取り・イベント後の荷物の出荷の対応も別途3,300円/回で対応可能です。
※用途により利用料金が異なる場合があります。詳しくはお問い合わせください。
ACCESS
・東急東横線・東京メトロ日比谷線「中目黒駅」から6分(450m)
・東急東横線「代官山駅」から7分(550m)
注意事項
・撮影対象時間は、申請時間(前倒しの場合は入室時間)から搬出・原状復帰完了までの時間になります。
・機材の準備はございませんので、全てお持ち込み頂きますようお願い致します。
・撮影機材・小物は全て当日の撮影時間内にお持ち込み下さい。事前搬入や、撮影後の搬出は受け付けておりません。
・当スタジオはスタジオマンがつきません。搬入、搬出や家具移動のお手伝いなど、アテンドのみの対応となります。
・使用後は清掃をお願いしています。
・室内は完全禁煙でございます。
・室内にてレイアウトを変更された場合には、退室されるまでに必ず元にお戻し下さい。
・お客様がお持込み頂いたものは全てご自身でお持ち帰り下さい。
・ゴミは必ずお客様が責任を持ってお持ち帰り下さい。スペース内に捨て置くことは認められません。
・万が一、スペース内にゴミを置いて行かれた場合は廃棄に掛かる全ての料金をお支払い頂きます。
・ご撮影決定前に、スタジオ詳細資料内の [注意事項同意書] もご確認ください。
・決定のご連絡をもって、スタジオ規定に同意していただいたものと致します。